みなさん、こんにちは!
今回は、ウェルネストホームが2023年3月東京都日野市にオープンした「きづく家PLUS」のモデルハウスにやってきました!
こちらのお家は白を基調としたシンプルなつくりが特徴で、延べ床面積が約30坪、2階建住宅になっています。
この「きづく家PLUS」は、「きづく家」で実現できなかった内装の自由度を高めた仕様になっています。また、以前ご紹介した当社の「えがく家」と非常に近いつくりになっているので、好きなインテリアや住宅設備を選ぶことができ、なおかつコストも抑えられた商品をご希望なお客様にはピッタリの家ではないでしょうか。
また、今回ご紹介したい特徴の一つが、設備の自動制御です。
わたしたちウェルネストホームは以前から空調や換気などを自動的に制御して室内環境を最適に保つ自動制御に力を入れていますが、今回意識したのは「買える金額の自動制御」です。
フル装備にせず、「買える価格帯」を目指しました。
それが体験できるのがこの「きづく家PLUS」東京日野モデルハウスなのです。
それでは、モデルハウスの中を見ていきましょう!

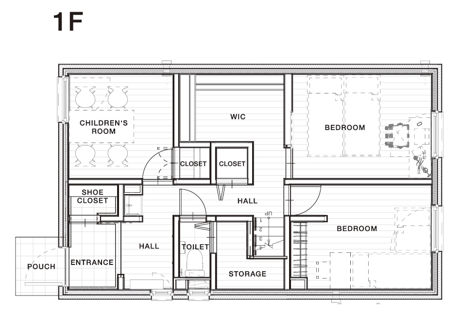
まずは玄関です。3畳程度のスペースになっており、収納スペースがあるのはうれしいですね!

特徴は入口のところにエアコンがついているところです。1階のフロアの空調は、玄関についているたった1台のエアコンによってまかなわれています。さらに、温湿度センサーによって玄関の状態はばっちり管理されています。
ところで、本来モデルハウスといえば「お客様に見せるためのもの」だと思っている方が大半ではないでしょうか。
しかし、こちらのお家はなんと実際に販売されているんです。そう考えて見ていくと、実際に住んだ時のイメージが沸いちゃいますね!
続いて子ども部屋を見ていきましょう。4畳半程度の広さとは思えない開放感があります。広々としたスペースに感じられる理由は、この大きな窓があるからですね!

この窓は、ウェルネストホームでよく使用される窓であり、なんと高さと幅がそれぞれ1m20cmもあるんです。これだけ大きいと太陽の光が取り入れやすいのが嬉しいですね。
また、この窓は2種類の開き方ができる仕組み(ドレーキップ窓)になっています。用途に応じた開き方が可能で、横に大きく開くだけでなく、換気の際に少しだけ開けることも可能です。
さらに、こちらのお部屋にも温湿度計がしっかり搭載されています。また、70秒ごとに自動で換気する熱交換換気システム「ヴェントサン」も設置されていて、室内の温度や湿度を一定に保っています。「ヴェントサン」はお掃除がとってもラクチンなのもうれしいですね。

1200mmの大きな窓が開放感を生み出す6畳の寝室の隣には洋室があります。
それでは、2階へと上がっていきましょう!


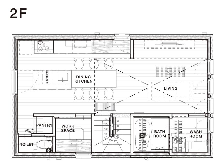
まず目の前に広がっているのは、開放感あふれる約20畳のL D Kです。開かれた雰囲気が印象的ですね。

北側に1200mmの窓と、南側にはさらに大きな窓(高さサイズ2000mm)が4つもついていて、広々とした印象を強調させるだけでなく、部屋のバランスをとるのにも役立っています。
また、リビングの上に広がる天井は、開放感を徹底的に追求するために勾配構造になっているんです。実はこれ、お部屋の開放感をさらにアップさせる役割があるんです。また、ロフトも付いているので、お子様も喜びそうですね。
キッチンはこの1、2年で普及が進んできたⅡ型(2列型)です。シンクとコンロが2列に分かれたこのタイプキッチンはとても人気がありますね。キッチンの逆側は収納スペースになっており、奥行きは30cmもあるので使い勝手がとってもよさそうです。

また、最近はリモートワークの普及も進み、ご自宅で仕事をされる方も多いのではないでしょうか。そんな方向けに書斎もあります。2畳程で、ゆったりとお仕事ができる空間になっています。

さらに、キッチンの奥には、トイレと収納があります。南側には洗面・ランドリースペースとバスルームがあり、それぞれ約2畳の広さになっています。バスルームには洗濯物を干すためのバーがついているので、浴室乾燥も可能です。


以上でお部屋の紹介は終わりますが、こんなに広々とした印象の住宅にもかかわらず、坪数は約30坪です。広く見えますね。
東京日野モデルハウス「きづく家PLUS」は、設計の自由度に加えて、コストパフォーマンス面もさらにプラスされています。もし興味を持たれましたら、体験宿泊も受け付けておりますので、ぜひご参加ください。実際に宿泊してみると、この家がいかにスゴいのか、よく分かるはずです。
また冒頭にもご説明したように、「買える金額の自動制御」もぜひ体感していただきたいです。
エアコンは、「きづく家」の標準同様、1階と2階に6畳用が1台ずつ。
自動的にコントロールされるのは、このエアコンと換気、太陽光発電システムです。
室内にCO2濃度が高くなると、自動でスイッチが入るデマンド換気で、内気循環型のレンジフードが標準採用されています。
また、自動制御を実現するため、実は室内のさまざまなところにセンサーがついています。これらのセンサーが、温度や湿度を見ながら1階、2階のエアコンを作動させるのです。 太陽光発電が稼働しているとき、もしくは蓄電池が動いているときは、冷やしたり温めたりします。
日射取得している時間帯は、太陽が出ている時でもあるので当然太陽光発電システムは稼働しています。そういうときに、室内を徹底的に冷やし、日射が落ちると日中に冷やした空気で朝まで快適に過ごす、というイメージです。
昼間の太陽光発電が稼働している間に、お風呂も沸き上げてしまいます。
余剰電力をお湯に変え、できるだけ自家消費しようという発想です。
自動的にコントロールすることによって、人間の手を煩わせることなくエネルギーを削減することができます。
こうすることで80〜90%のエネルギーを自家消費で賄うことができると考えています。
ぜひこうした自動制御を体感してください。
お待ちしております!
【東京日野モデルハウス】見学会受付中
住所:東京都日野市豊田3丁目13-1
申し込み方法:随時、お受けしております。日程等の詳細はこちらをご覧ください。








