言うまでもなく毎日家族中の人が使うエリアが水回りです。コンパクトで使い勝ってが良く無駄のない空間にしたいですね。一方で気持ちの良い空間にすることも大事ではないかと考えています。
「家事=かじ」はただの作業ではなく、毎日の暮らしを支える大切な「いえのこと=家事」なのです。家事を楽しむことができればそこで過ごす生活が楽しくなるくらい水廻りの間取りは、家づくりの基本と言えるでしょう。では「水廻りと家事動線」の5つのノウハウを見ていきましょう。
水廻りと導線 / 間取りで考える導線の「面と裏」

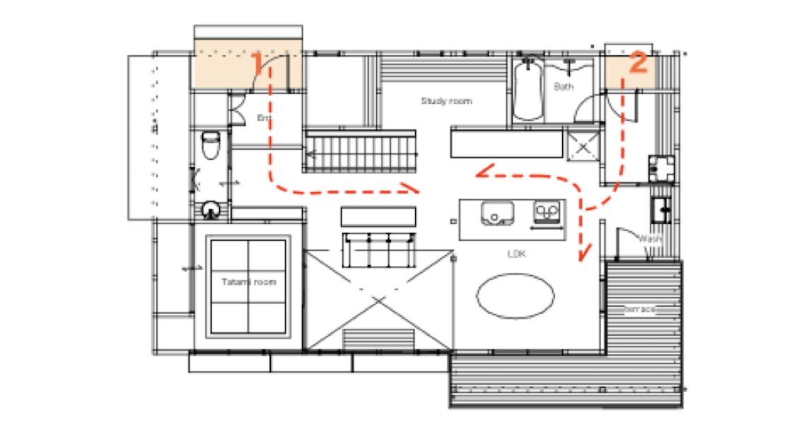
サンプルの平面図を見ると、「1のルート」は玄関から入ってリビングに至る経路となっています。「2のルート」は勝手口から水廻りを経由してキッチンに至る経路。食材を買い込んだ時などはこの「2のルート」がスムーズにキッチンに行くことができ便利です。家事をする人にとって、この「2のルート」であるもうひとつの裏の動線=水廻り動線を確保することで、日常の煩雑な動きをコンパクトにすることが可能となります。
日用の消耗品の多くは水廻りにあり、勝手口と水廻りが近接しているのはとても便利です。通常の玄関からの動線に加え、もうひとつの動線として水廻り動線はともて大切な経路となります。

次の平面図は階段スペースを活かして、2つの動線を確保した実例です。 外部との出入口は北側に玄関が1つあるだけですが、リビングへ向かう「1のルート」と水廻りに至る「2のルート」の2つの経路を確保しています。しかもぐるりと回遊できる動線なので玄関と反対側の南側からもアプローチができるようになっています。こどもの帰宅時にリビングに入る前にうがい手洗いができるように、とても便利な間取りとなっています。
写真1はリビング側から見た階段ですが、その左側に洗面空間が見えます。引戸で仕切っていますので開放していれば広がりを感じることができます。もうひとつこの間取りで良いところは、洗面空間が動線と一体となってオープンであるところです。脱衣と洗面が浴室の前室にある住宅も多くありますが、このように洗面をオープンな動線上に設置すると、洗面室は家族が行き交う楽しい空間となるに違いありません。
洗面と空間 / 洗面でどんな家事を

ところであなたは洗面所でどんな家事をするでしょうか。「家事=いえのこと」なのでこの洗面空間でできる用途を考え想像しながら計画することをお勧めします。
写真2の例では幅の広いカウンターを設置したので、そこでアイロン掛けができるようにしました。ぜひご自分に合った用途を取入れて計画してください。

いろいろな機能をコンパクトに納めたシステム洗面台も便利ですが、折角戸建て住宅を建てるのであれば、家具や造作等で洗面空間をデザインするのはいかがでしょうか。Wellnest Homeではオリジナリティのあるインテリア空間にすることで、お住まいになる方のご希望に応えています。
写真3は鏡とオープン棚を使いやすい高さにセットした上部に、洗面空間いっぱいの横長の窓を設置しました。プライバシーを確保しながらも明るい光を取入れることができるので、とても居心地の良い空間になっています。
写真4は洗濯において「洗面器以外に汚れ物を洗う場所が欲しい」とのご要望がありましたので、浴室の横に深めのシンクを設置しました。汚れ物や靴などを洗う時、このシンクが大活躍しています。

お気に入りの材質や自分好みのアイテムを、この水廻り空間に取入れてみましょう。 写真5は洗面カウンターとオープン棚の材質を合わせて、トータルにコーディネートをした実例です。普段使いのリネンは使用頻度が高いので、オープン棚が使いやすいと好評です。水栓を自分好みのアンティーク調にするのもひとつの工夫です。デザイン的にひと工夫することで自分にとっての居心地の良い空間がつくれますので、ぜひチャレンジをしてください。 写真6は2つの水栓を設置した洗面器を使用しています。洗面器一台で水栓が2つセットできる器具ですので設置スペースをセーブしながらも、朝の混雑時の同時使用も問題ありません。

リビングやダイニングなどはなるべくシンプルで飽きがこないナチュラルインテリアが お勧めですが、水廻り空間のひとつの楽しみは、自由なインテリアができることではないでしょうか。自分好みのタイルを張るのも、ひとつのアイデアです。毎日使う家事スペースだからこそお気に入りのデザインにすることで、生活に彩りを与えます。 写真7は洗面台から腰壁までをモザイクタイルに、写真8は鏡の周りをモザイクタイルにした実例です。
脱衣所と空間 / 脱衣所と洗濯導線

次の図は脱衣及び洗面室から南側のテラスへとつづく水廻り動線を持つ、平屋の平面図です。洗濯は毎日のこと。ご家族の構成によっては、1日に何回も洗濯をする方もまれではありません。この住宅は洗濯してからそのままテラスに干すことができるので、まさに洗濯動線が確保されたプランニングです。日常の動線をコンパクトにプランニングすることはとても大事なことです。また南側のテラスに面して窓を大きく壁一面に設置したので、明るく気持ちのよい空間となっています。 藤柄の床材を二色使いの市松模様で張り込みました。

次にご紹介するのは、高さ方向のスペースを有効に使った実例です。 機種にもよりますが、市販の洗濯機の高さは高くても110cm程度です。写真は両方とも階段下を利用した例です。 写真10は良く見ると洗面の鏡に映っているのがわかると思いますが、凹んでいる部分が洗濯機のための空間です。 写真11は階段の下をオープンにして洗濯機を配置し、そのサイドに室内干し用のバーを壁面より2本設置しています。ここでワンポイントアドバイスです。室内干しをどこでするのかを想定して、水廻り空間の間取りをすることをお勧めします。洗面所の手前の天井に設置する場合もありますが、普段使いの動線上に設置すると天気が悪い日がつづくと、洗濯物がやっかいに感じるものです。この写真11のように、水廻り動線に絡まない階段下の空間を見つけて設置するのは賢い方法のひとつです。

脱衣室の計画で大事になるキーワードは「収納」です。バスタオルとか浴室関係以外の洗濯物でも種類によっては、脱衣室にあった方が良い物もあるはずです。
写真12は洗濯機の横に収納を確保した実例です。こどもの下着などは、脱衣室の近くでそのまま着衣できた方が家事においては便利です。
寝室のタンスに衣服を収納する住宅もありますが、水廻りと個室とを往復運動していて、家事動線としては無駄があるのが良くわかります。
写真13と平面図は洗面及び脱衣室の隣に、家族みんなが使えるクロゼットがある実例です。これだけの収納があれば各個人のエリアを決めて洗濯物をそのまま収納できます。
ご要望に応じてですが、Wellnest Homeではこの空間を「ファミリークロゼット」として計画に取入れています。
トイレと空間 / トイレの居心地

写真14は香川高松モデルハウスのトイレ空間の写真です。どことなく居心地が良いスペースだと感じていただける方もいるかと思いますが、それは洗面台とトイレを兼ねた通常のトイレより少し広いスペースだからです。このモデルハウスでは上階にもトイレがあるので、洗面だけをつかう場合でも問題ありません。このように各階にトイレが1つづつある住宅であれば、どちらか一方を来客用と兼ねてちょっとした身繕いができるような洗面との併用も、お勧めのプランニングです。また写真のように小さいですが窓を設置することも空間に居心地を与える上では大切なことです。上部に設置することでプライバシーにも配慮されています。

写真はどれも小さいながら手洗い器を設置した実例です。最近のロータンク型トイレは手洗いが設置されていないので、それをインテリアに活かしています。手洗い器のコーナーが、その住人のオリジナリティーを感じられる良いスペースになっています。
写真15は、照明と便器を同じ質感のマテリアルを使うことで、トータルにコーディネートしています。 写真16は、陶器の洗面と和を感じさせるクロスとの組み合わせが、落ち着きのある雰囲気を醸し出しています。 写真17は、コーナーを活かした洗面です。青いガラス製の手洗い器が、空間にアクセントを与えてます。 写真18は、トイレ上部に飾り棚を設置した例です。ちょっとしたデザイン的工夫で、おしゃれな空間になっています。
浴室の空間 / お風呂の過ごし方

リビングとダイニングをつなぐ回遊性のある廊下の一部が、洗面と脱衣空間になっています。Wellnest Homeの住宅では超高断熱・超高気密ですので、住宅全体がほぼ均質の温度環境になっていますので、お風呂上がりの空間もここち良く過ごすことができます。このような間取りもWellnest Homeだからこそ生きてきます。Wellnest Homeの住宅では、このように入浴前後の脱衣時に寒くて苦労することがなくなります。お風呂上がりにお肌のケアをする時など、リラックスしたひとときをお過ごしいただけます。

浴室は日頃の疲れを取るリラックスできる空間であって欲しいと考えています。一般的な住宅では、居室と水廻り空間の温度差が顕著であることは少なくありません。寒い空間では血管が収縮してとてもリラックスできる状況ではありません。ヒートショックも居室と水廻り空間の温度差によって起こるの現象です。Wellnest Homeの住宅では浴室の室温も居室と同等の温度であるため、室温を上げるために設置する天井型浴室暖房機も必要がありません。インテリアとしてもリラックスできるように浴室の壁面の一部にアクセントとして、木目調のパネルを設置した実例です。
知恵のまとめ / 水廻りと家事導線
- もうひとつの動線として水廻り動線を考える
- 洗面空間でできるいろいろな用途を取込んだ計画を
- 脱衣室の近くに家族のための収納を考える
- トイレに自分好みのインテリアを取入れてゆっくりできる空間へ
- お風呂から上がった時のことも考えた間取りに








