
えがく家
戸建て住宅
えがく家
EGAKU IE

世界基準の性能に
暮らしの理想を自由に描く家
ずっと思い描いてきた理想の暮らし。それをかたちにするのが、完全自由設計の「えがく家」です。世界基準の住宅性能はそのままに、間取りやデザインを自由につくることができます。お客様と設計士、熟練の職人が力を合わせ、ゼロからつくり上げていく。そんな挑戦に満ちた家づくりは、深いよろこびに満たされ、一生涯残る思い出となるでしょう。完成後も、暮らす人の物語を静かに描き続けていきます。
自由と性能を両立させた
ウェルネストホームの最上級仕様
高気密・高断熱の家と聞くと、「窓が小さいのではないか」「設計の自由が少なそう」そんなイメージを持つかもしれません。でも、「えがく家」は違います。断熱・気密・耐震、基本性能がしっかりしているからこそ、大きな窓も、大胆な間取りも、自由に描くことができます。そしてもちろん、100年先も家族を包み続けられる家でなくてはなりません。構造計算を積み重ね、確かな根拠のもと設計されています。

間取りだけでなく
造作家具まで、自由に描ける家
「えがく家」は、棚やカウンターなどの家具から、壁の素材、小物、植栽にいたるまで、住む人の希望に沿ってデザインすることが可能です。空間にぴったり合う造作家具は、暮らしに馴染みながら家族の歴史を受け継ぎ、好みに合わせて選んだ植物たちは、季節ごとに表情を変え、暮らしに彩りを添えてくれます。すべてが家に調和しているから、動線も気持ちもスムーズに。だからこそ「暮らしやすい」のです。

世界にひとつ、
あなただけの心地よさを描く
この家は、住む人の夢を自由に描き、形にする住まいです。日本庭園を楽しみながら檜風呂につかりたい。キッチンから家全体を見渡せて、家族の気配をいつも感じられるリビングがほしい。愛猫のために、家中にキャットウォークを張り巡らせたい――。夢のかたちは人それぞれ。私たちは、その夢と理想を描くお手伝いをします。「私だけの快適さ」を叶えるから、この家は心地よいのです。

GALLERY
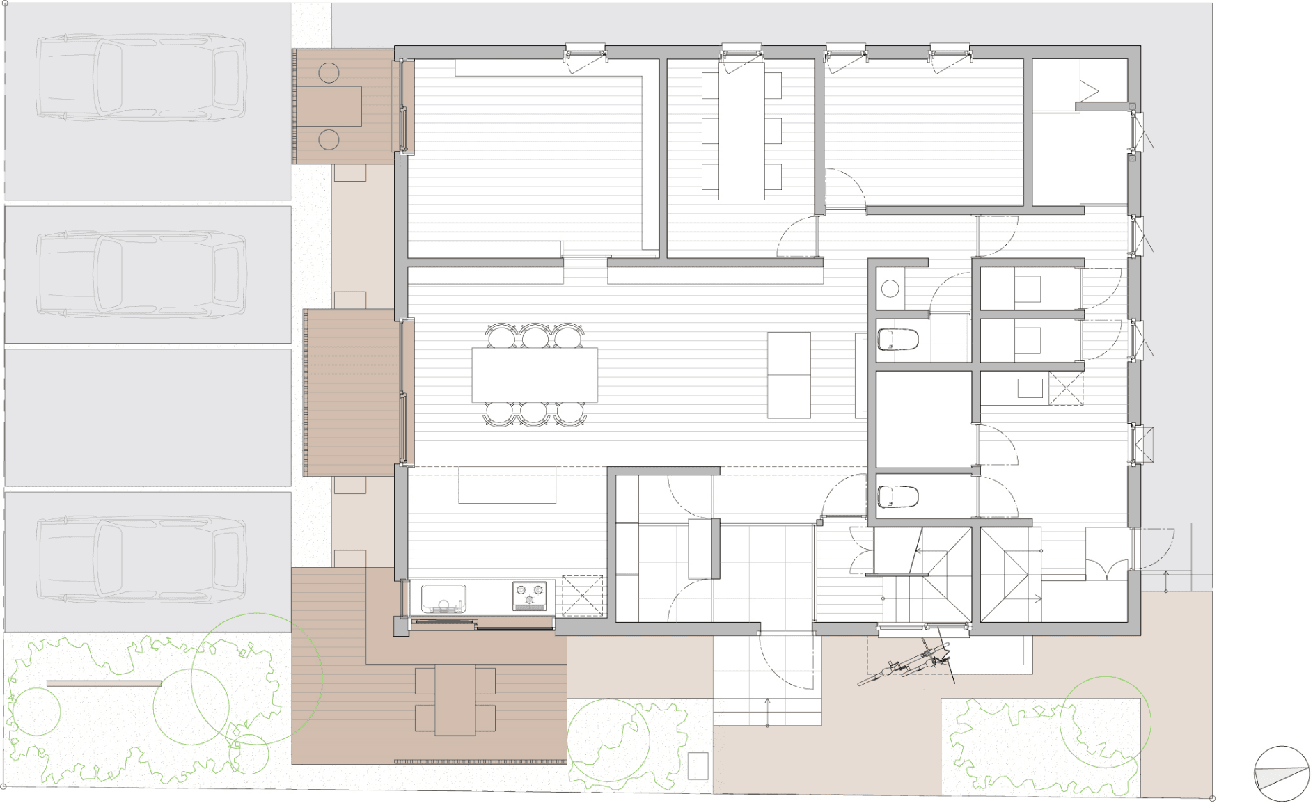
間取り例
標準性能

家の隙間面積を示すC値は気密性能の基準です。ウェルネストホームのC値0.2㎠/㎡は、日本のハウスメーカーでトップクラスの数値※1です。

住宅の断熱性能を表すUA値は、数値が低いほど断熱性に優れています。ウェルネストホームのUA値は、国が推奨する断熱基準の3分の1以下です。

ウェルネストホームの壁はダブル断熱(充填断熱+外張り断熱)を採用し、断熱材だけで合計で205㎜の厚み(一般的な住宅の2倍以上)です。

ウェルネストホームの窓は世界トップクラスの断熱性能を誇り、そのU値は0.78W/㎡・Kと、国内で最も普及している窓の平均U値4.65W/㎡㎡・Kの約6倍の性能です。

屋根/天井の断熱材※3には、断熱、調湿、防音に非常に優れたセルロースファイバーを300mm以上(一般的な住宅の2倍以上)使用しています。

構造材は、緑の柱(ACQ処理木材)を標準採用。シロアリや腐れに非常に強い木材で、理論上では100年以上の耐久性があるといわれています。※4

耐震等級3設計が標準仕様です。等級3は、等級1の1.5倍の地震力に耐えられるだけの性能・耐震強度水準です。地震保険の保険料が50%割引になるのも利点です。※5

窓と壁は外からの500Hz以上の音域の音を40dB以上削減することができます。マイナス40dBは、屋外の騒音を100分の1以下まで減少させる遮音性能です。

空調した室内の空気を換気で捨て過ぎずに室温を一定に保つ、熱交換型の換気システムを採用。捨てる空気から最大87%もの熱を回収しています。※6

気密性・断熱性が高いため、外気温に左右されることなく、エアコン1台で1年中快適な室温で暮らすことができ、光熱費を抑えることができます。※7

Haiot Systemが電力消費を自動制御。太陽光発電システムを利用して発電した電力を建物内で消費する割合は最大95%※8。経済的かつ、CO₂削減に貢献します。

ウェルネストホームで1年間に排出するCO₂の量は、一般的な住宅と比較し、60〜90%削減しています。(2013年基準)
- ※1 当社調べ(2025年8月)
- ※2 お客様のご要望やプランによっては0.28W/㎡K程度にある場合があります
- ※3 屋根断熱はオプションです
- ※4 出典:株式会社コシイプレザービング
- ※5 地震保険の割引を適用するためには、有償の第三者評価を受けていただく必要があります
- ※6 出典:エディフィス省エネテック株式会社
- ※7 間取りやプランにより異なる場合があります
- ※8 6地域で30坪4人世帯、PV6kW、蓄電池6kWhの場合の最大値
お客様の声
実例集
戸建て住宅 商品一覧
ウェルネストホームを
ご検討中のお客様へ
お電話での
お問い合わせはこちらから
0120-066-530
0120-146-991
0120-810-490
0120-146-711
0120-146-991
営業時間: 9:00~18:00 / 定休日:水曜・木曜































