
つなぐ家
戸建て住宅
つなぐ家
TSUNAGU IE

高い性能を保ちながら
もっともコストパフォーマンスの高い家
「つなぐ家」の設計施工を手がけるのは、ウェルネストホームでの施工経験を通じて技術を磨いてきたプロフェッショナル集団、「ウェルネストエンジニアリング」です。彼らは、高い性能を保ちながら、いかにコストパフォーマンスを高めるかを、ウェルネストホームと共に日々研究しています。そして今、それぞれの地域で、その土地だからこそ叶えられる「つなぐ家」をつくっています。
ウェルネストホームの技術を継承した
プロフェッショナルがつくる家
「つなぐ家」は、UA値0.35W/㎡・K以下・C値0.3㎠/㎡以下という高い住宅性能を実現しています。家全体の温度が一定で、快適な住環境を保ち、ヒートショックのリスクや結露の発生を抑え、健康的な暮らしを支えます。また、半永久的に腐れやシロアリの心配がない「緑の柱」を構造材に採用し、長く安心して暮らせる家を実現。こうした性能をしっかりと確保しながら、自由設計にも対応しています。

詳細はウェルネストエンジニアリングのホームページをご覧ください。
GALLERY
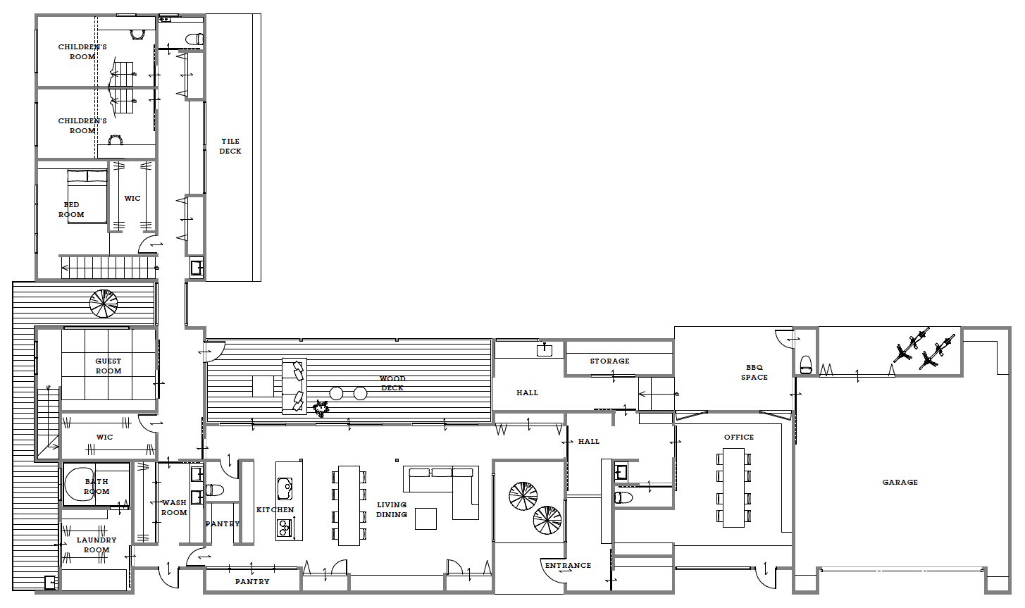
間取り例
標準性能

家の隙間面積を表すC値は気密性能の基準です。「つなぐ家」の隙間面積は家全体(延べ床面積100㎡)でわずか30㎠以下と高い気密性です。

住宅の断熱性能を表すUA値は、数値が低いほど断熱性に優れています。「つなぐ家」のUA値は、国が推奨する断熱基準の2分の1以下です。

構造材に緑の柱(ACQ処理木材)を標準採用。シロアリや腐れに強く、論理上では100年以上の耐久性があるといわれています。※1

気密性・断熱性が高いため、外気温に左右されることなく、エアコン1台で1年中快適な室温で暮らすことができます。※2

空調した室内の空気を換気で捨てすぎずに室温を一定に保つ、熱交換型の換気システムを採用。捨てる空気から最大87%もの熱を回収しています。※3

耐震等級3設計が標準仕様です。等級3は、等級1の1.5倍の地震に耐えられるだけの性能・耐震強度水準です。地震保険の保険料が50%割引になるのも利点です。※4
- ※1 出典:株式会社コシイプレザービング
- ※2 間取りやプランにより異なる場合があります
- ※3 出典:エディフィス省エネテック株式会社
- ※4 地震保険の割引を適用するためには、有償の第三者評価を受けていただく必要があります。
お客様の声
実例集
戸建て住宅 商品一覧
ウェルネストホームを
ご検討中のお客様へ
お電話での
お問い合わせはこちらから
0120-066-530
0120-146-991
0120-810-490
0120-146-711
0120-146-991
営業時間: 9:00~18:00 / 定休日:水曜・木曜



























