
きづく家
戸建て住宅
きづく家
KIZUKU IE

性能を突き詰めた形を標準に
間取りは思いのまま
「きづく家」は、矩形※1と切妻屋根※2という基本の形は決まっているけれど、間取りは自由に設計することができます。外壁や玄関ドアの色などは、ウェルネストホームが厳選した選択肢の中からお選びいただけるため、膨大なオプションに悩むことはありません。住まい手の最適を大切にした、日々の暮らしを築く家です。
性能を維持したまま
コストも時間もスマートに
「きづく家」では、壁や窓、ドアや断熱材など、躯体の建材は、ウェルネストホームの標準仕様と同じです。建物本体の性能を保ちながら、コストを抑える工夫を取り入れています。作り付け家具を設けず、キッチンや洗面台などの設備はあらかじめ厳選してご用意。高性能を標準採用しながら、選択肢を絞ることで打合せの回数を限定し、効率的でスムーズな家づくりを実現しました。

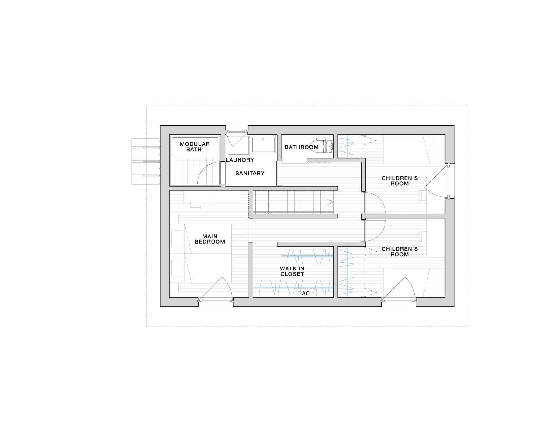
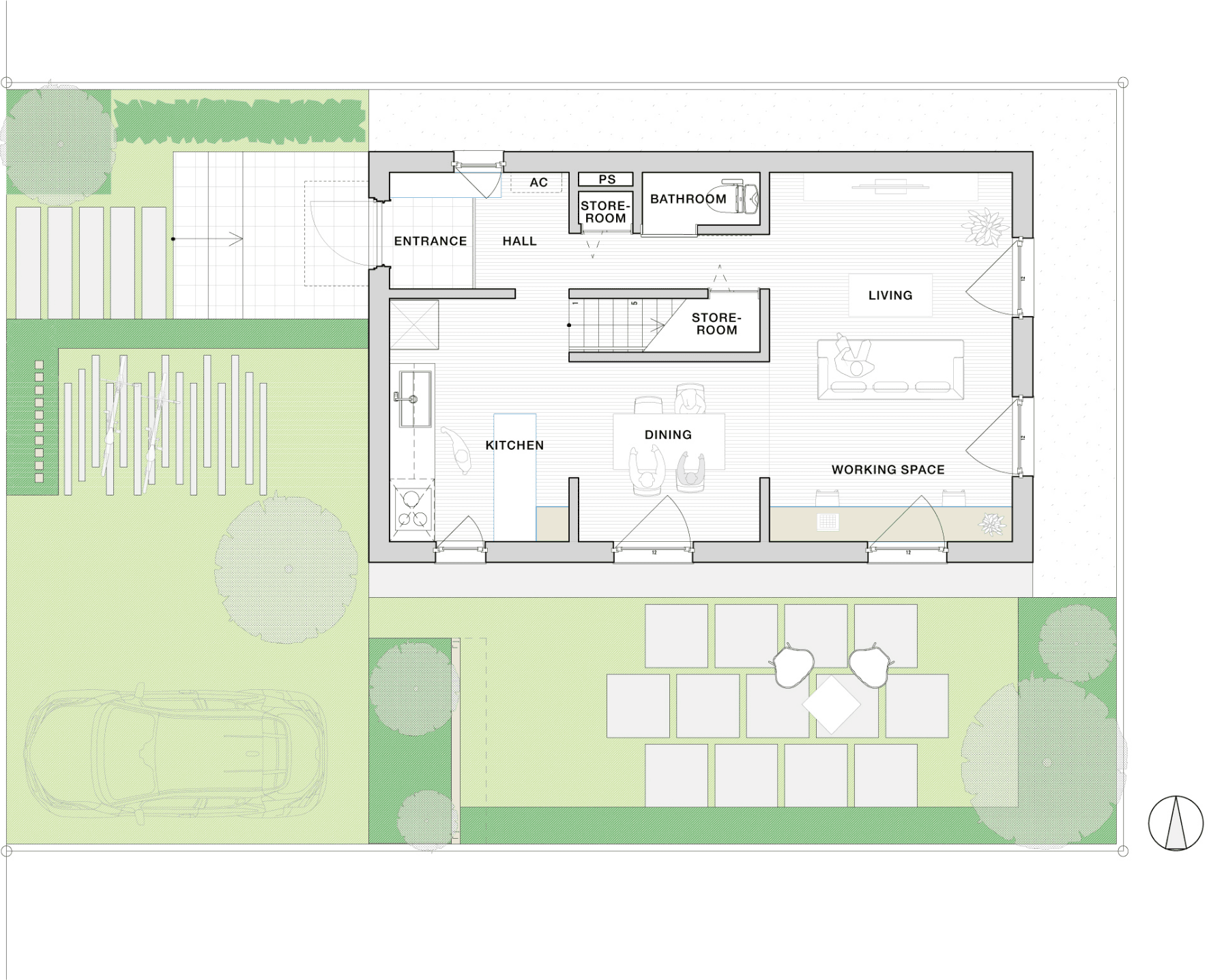
GALLERY
間取り例
標準性能

家の隙間面積を示すC値は気密性能の基準です。ウェルネストホームのC値0.2㎠/㎡は、日本のハウスメーカーでトップクラスの数値※1です。

住宅の断熱性能を表すUA値は、数値が低いほど断熱性に優れています。ウェルネストホームのUA値は、国が推奨する断熱基準の3分の1以下です。

ウェルネストホームの壁はダブル断熱(充填断熱+外張り断熱)を採用し、断熱材だけで合計で205㎜の厚み(一般的な住宅の2倍以上)です。

ウェルネストホームの窓は世界トップクラスの断熱性能を誇り、そのU値は0.78W/㎡・Kと、国内で最も普及している窓の平均U値4.65W/㎡㎡・Kの約6倍の性能です。

屋根/天井の断熱材※3には、断熱、調湿、防音に非常に優れたセルロースファイバーを300mm以上(一般的な住宅の2倍以上)使用しています。

構造材は、緑の柱(ACQ処理木材)を標準採用。シロアリや腐れに非常に強い木材で、理論上では100年以上の耐久性があるといわれています。※4

耐震等級3設計が標準仕様です。等級3は、等級1の1.5倍の地震力に耐えられるだけの性能・耐震強度水準です。地震保険の保険料が50%割引になるのも利点です。※5

窓と壁は外からの500Hz以上の音域の音を40dB以上削減することができます。マイナス40dBは、屋外の騒音を100分の1以下まで減少させる遮音性能です。

空調した室内の空気を換気で捨て過ぎずに室温を一定に保つ、熱交換型の換気システムを採用。捨てる空気から最大87%もの熱を回収しています。※6

気密性・断熱性が高いため、外気温に左右されることなく、エアコン1台で1年中快適な室温で暮らすことができ、光熱費を抑えることができます。※7

Haiot Systemが電力消費を自動制御。太陽光発電システムを利用して発電した電力を建物内で消費する割合は最大95%。※8経済的かつ、CO₂削減に貢献します。

ウェルネストホームで1年間に排出するCO₂の量は、一般的な住宅と比較し、60〜90%削減しています。(2013年基準)
- ※1 当社調べ(2025年8月)
- ※2 お客様のご要望やプランによっては0.28W/㎡K程度にある場合があります
- ※3 屋根断熱はオプションです
- ※4 出典:株式会社コシイプレザービング
- ※5 地震保険の割引を適用するためには、有償の第三者評価を受けていただく必要があります
- ※6 出典:エディフィス省エネテック株式会社
- ※7 間取りやプランにより異なる場合があります
お客様の声
実例集
戸建て住宅 商品一覧
ウェルネストホームを
ご検討中のお客様へ
お電話での
お問い合わせはこちらから
0120-066-530
0120-146-991
0120-810-490
0120-146-711
0120-146-991
営業時間: 9:00~18:00 / 定休日:水曜・木曜































